• Eids Consultants
  • Eids Consultants
  • Eids Consultants
    Eids Consultants
    • Home
    • About
      • About Us
      • Leadership
    • Our Projects
      • Hospital Care
      • Residential
      • Commercial
      • Addition & Alteration
      • Building Inspections
      • Industrial
      • Retail
      • Design Review Value Engineering
      • Shoring Underpinning and Retaining Walls
    • Services
    • Vacancies
    • News
    • Contact Us

Category: Design Review Value Engineering

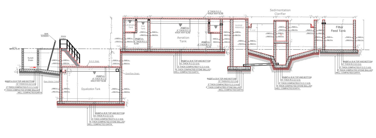
Sewage Treatment Plant in Pakistan

Bridge over a canal in Islamabad, Pakistan

Qatar Museum and Cultural District, Doha, Qatar

  • 2020 ®EIDS, All rights reserved. | Powered by Opus Communication